AE-Group, a manufacturer of critical automotive components in various aluminum alloys, engaged furnace builder StrikoWestofen to manage a program of refractory lining and modernization for 14 dosing furnaces it operates at two foundries in Germany and one in Poland. The furnaces, all Westomat dosing furnaces supplied by StrikoWestofen at different times, will be revised to current operating standards, according to the contractor.
The foundries produce castings used in numerous applications, including transmission valves and housings, converter, clutch and transmission housings; axle drive housings, engine and transmission components, and various structural applications (chassis, bearing blocks, damper mounts, etc.)
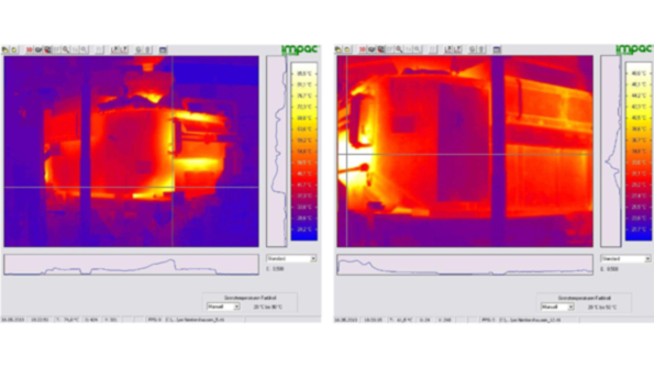
“After operating periods of up to 17 years, it has now become necessary to reline the existing systems,” explained Holger Stephan, manager of StrikoWestofen Service and Spare Parts. “Extensive measurements and thermographs allowed us to identify additional opportunities for optimizing the refractory design. In the context of a comprehensive modernization, we will reduce the energy consumption by up to five percent.”
The refractory lining of a dosing furnace contributes significantly to its energy efficiency. StrikoWestofen supplies new dosing furnaces with refractory linings that are designed according to the specific dimensions, and the materials to be processed. Considering this is necessary to achieve the performance objectives for consumption and precision, the developer said it also recommends that operators of dosing systems incorporate a redesign of the furnace chamber with standard relining programs.
The AE-Group has been operating Westomat dosing furnaces for several years. In the framework of the contracted relining, StrikoWestofen will equip a total of 14 systems with state-of-the-art technology. “The potential savings are considerable,” according to Stephan. “The modified refractory lining reduces the energy consumption by around 5%.”
StrikoWestofen conducted a detailed analysis of the furnaces’ existing situation, including measurements of the current energy consumption as well as thermographic images. “The thermographs clearly show the places in the furnace at which the most heat is lost," he said, adding that an extensive modernization schedule was worked out on the basis of those images.
“Originally, we were planning to renew the refractory material, and we had considered using local suppliers of refractory furnace linings to do this,” offered Robert Drehmann, maintenance manager at the AE-Group. “However, the StrikoWestofen concept of an optimized furnace chamber geometry was a convincing proposition for us: this allowed an additional improvement of the energy efficiency of our existing systems.
“On the basis of the data collected, it was even possible to make guarantees with regard to the energy efficiency values which can be achieved after modernization,” Drehmann continued. “It will not take long for these savings to make up for the additional costs of planning and execution.”
In order to minimize the disruption to AE-Group’s operations, StrikoWestofen leased an additional dosing furnace to AE-Group. “In this way, we guarantee smooth execution of the necessary modernization measures,” Stephan said.
“To make commissioning after relining as quick and easy as possible, the furnace bodies are disassembled on the premises of the AE-Group and overhauled and dried in our factory. The systems are ready to be taken into operation immediately upon their return to the AE-Group,” he noted, and then concluded: “This makes expensive and time-consuming initial operations with porous plugs unnecessary.”
About the Author
Robert Brooks
Content Director
Robert Brooks has been a business-to-business reporter, writer, editor, and columnist for more than 20 years, specializing in the primary metal and basic manufacturing industries. His work has covered a wide range of topics, including process technology, resource development, material selection, product design, workforce development, and industrial market strategies, among others.
